河北造价员考试工程计量与计价实务(开卷部分)模拟试题(3)
导读:
进入全真模拟考场在线测试此套试卷,可查看答案及解析并自动评分 >> 在线做题
本文导航
- 第3页:安装管道专业试题(开卷部分)11-14
- 第4页:市政道桥专业试题(开卷部分)15-18
15、根据“施工图和已知条件”,回答15-18问题!
按照《建设工程工程量清单计价规范》(GB50500—2013)和2012年《全国统一市政工程预算定额河北省综合基价》分别计算工程量。
1.钢筋混凝土灌注桩。
2.桥面现浇混凝土空心板梁。
3.桥面铺装钢筋,钢筋搭接长度按30d计算。
4.伸缩缝。
16、 根据“施工图和已知条件”,以及上题所在级别计算出的工程量,编制分部分项工程量清单。
17、 1.现浇钢筋混凝土灌注桩长合计为300m,回旋钻机钻桩孔深度合计为400m;
2.钢筋混凝土桥空心板梁混凝土数量为40m3,模板接触面积为160m2;
3.桥面铺装钢筋按定额计算的工程量为1t;
4.伸缩缝合计长度为60m;
5.施工方法等条件见“施工图和已知条件”。
根据2012年市政工程定额及相应的市政工程费用定额计算工程造价,不计取其他措施费,人工、材料、机械单价均不调整,按包工包料取费。
18、 1.现浇钢筋混凝土灌注桩长合计为300m,回旋钻机钻桩孔合计深度为400m;
2.钢筋混凝土桥空心板梁混凝土数量为40m3,模板接触面积为160m2;
3.桥面铺装钢筋按清单规范计算的工程量为1t;
4.伸缩缝合计长度为60m;
5.施工方法等条件见“施工图和已知条件”。
根据现行定额编制分部分项工程量清单报价和综合单价分析表。人工、材料、机械单价均不调整,不计算措施费、规费、税金。
施工图和已知条件:
一、某市政道路上的简支板钢盘混凝土桥;
二、施工方法:
1.钢筋混凝土灌注桩成孔按回旋钻机钻孔,按水下灌注混凝土桩考虑;
2.土壤按砂砾土考虑;
3.混凝土按商品混凝土考虑。
三、施工图:
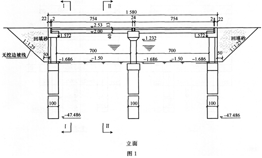
1.桥型布置图如图1所示。


说明:
1.本图尺寸除标高以m计,其他均以cm计。
2.桥梁设计标高为桥梁中心线处桥面标高。
3.桥梁设计荷载:汽车-20级。
4.桥梁中心线与桥位处道路中心线重合。
图1
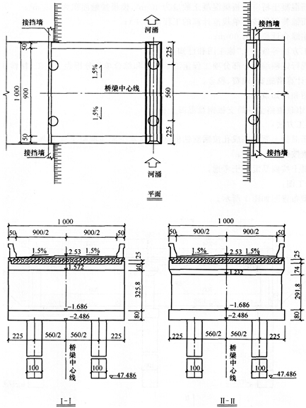
2.薄壁桥台构造图如图2所示。

说明:
1.本图尺寸除标高以m计外,其余均以cm计。
2.梁与挡块之间设油毛毡分隔。
3.承台、薄壁桥台为C25(中砂碎石,粒径20mm)钢筋混凝土。
4.薄壁桥台桩基础为φ100cm钻孔灌注C20(中砂碎石,粒径20mm)钢筋混凝土桩。
5.桥台两侧按接挡墙考虑,未设翼墙及搭板。
图2
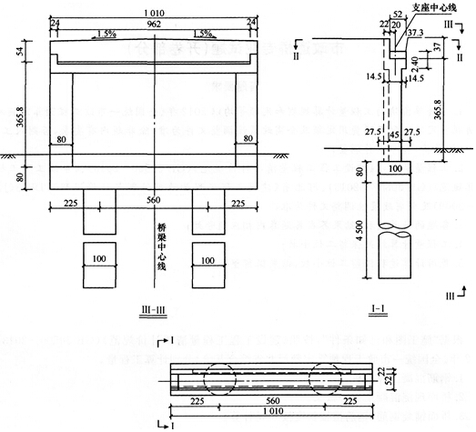
3.薄壁桥墩构造图如图3所示。

说明:
1.本图尺寸除标高以m计外,其余均以cm计。
2.梁与挡块之间设油毛毡分隔。
3.承台、薄壁桥墩C25(中砂碎石,粒径20mm)钢筋混凝土。
4.薄壁桥台桩基础为φ100cm钻孔灌注C20(中砂碎石,粒径20mm)钢筋混凝土桩。
图3
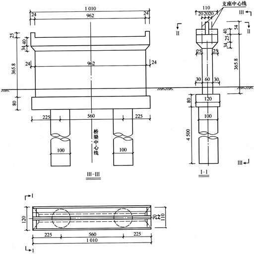
4.桥面空心板构造图如图4所示。

说明:
1.本图尺寸均以cm计。
2.空心板混凝土浇筑前先用M10水泥砂浆抹平台帽,安装好橡胶支座,每块一端布规格为D=200mm(直径)、H=28mm(高度)橡胶支座32个,共计136个。空心板混凝土强度等级为C30。
3.考虑采用现场浇筑。
4.内模脱模,后即可浇筑25cm厚的封头混凝土,注意务必严实。
5.浇筑空心板时跨中应留有1cm的预拱度。
图4
5.桥路面铺装构造图如图5所示。

说明:
1.本图尺寸以cm计。
2.桥面铺装钢筋材质为1级热轧光圆钢筋。
3.钢筋保护层厚度不小于2.5cm。
4.桥面铺设抗折混凝土5.O(中砂碎石,粒径20mm),磨耗层拉毛处理。
责编:zdh




