2015年造价员考试安装工程每日一练(8月26日)
来源:233网校 2015年8月26日
导读:
在线测试本批《每日一练》试题,可查看答案及解析,并保留做题记录 >> 在线做题
简答题
1、



2、某办公楼采暖工程,地点位于北京城区五环内,建筑物檐高20米。按照2012通用安装工程预算定额第十册《给排水 采暖 燃气工程》计算得出该工程分部分项工程费1100000元,其中人工费165000元;措施项目费读取内容见下表,其他项目费未计取。依据2012通用安装工程预算定额第十册《给排水 采暖 燃气工程》,京建法[2013]7号“关于执行《北京市建设工程计价依据-预算定额》的规定”文件,按下表内容编制该工程招标控制价。(要求填写计取基数,金额保留小数点后两位数字)
某办公楼采暖工程招标控制价
3、根据2012年《北京市通用安装工程预算定额》,按图纸计算通风工程的工程量,列出相应项目定额编号、工程项目、单位和计算式;定额中未计价材料和设备不列项。(保留小数点后两位数字)
工程量计算表说明:定额编号标注方式为“册+定额编号”。如第7册1-1子目 ,定额编号为7-1-1
设计说明:某铝箔印刷车间设计通风系统。
1、轴流风机采用墙内安装,混流风机采用金属支架上安装(风机支架不要求计算),风机技术参数见下表。
2、混流风机均设出墙弯管,规格为¢450,垂直长度为300mm,弯管末端加防虫网(镀锌钢管网,框内规格¢400 )。
3、风管采用热镀锌钢板制作,厚度0.75mm,咬口连接。风管长度按图示尺寸计算。
4、室内风口采用铝合金材质百叶风口(带过滤网),风口规格如图示,颜色根据装修需要确定,风口按成品考虑。风口至风管的短节不计算。
5、风管外做橡塑保温(包括出墙弯管),厚度30mm。
6、其他未说明处不计算。

4、 根据2012年《北京市通用安装工程预算定额》,按图纸计算采暖工程的工程量,列出相应项目的定额编号、项目名称、计量单位、计算式、工程量。列出未计价主材,并计算相应工程量。(保留小数点后两位数字)
如图为某综合厂房采暖工程,设计说明如下:
1、采用市政采暖接口,设计供回水温度85/60℃。除已标注单位外,尺寸标注为mm。水平干管不考虑放坡系数。
2、供回水管主、干管均采用焊接钢管,管径DN>25采用焊接,管径DN≤25采用螺纹连接,与散热器连接的支管、立管均采用镀锌钢管,螺纹连接,管径均为DN20。干管按系统图标注尺寸计算,支管按1.5米/组(每组散热器)计算。
3、散热器均采用钢制柱式SCCGZY-1.0型成品散热器(高度1米),散热器采用落地安装,连接方式为同侧上供下回。
4、螺纹阀门采用全铜阀门,焊接法兰阀采用铸钢法兰阀门;每组散热器均设手动跑风。
5、其它未说明处不计算。
工程量计算表说明:定额编号标注方式为“册+定额编号”。如第7册1-1子目 ,定额编号为7-1-1

5、根据2012年《北京市通用安装工程预算定额》,按图计算给排水工程的工程量,列出相应定额编号、工程项目、单位和计算式。(保留小数点后两位数字,不用考虑主材。)定额编号标注方式为册+定额编号
1、生活给水由市政管网直接供给(低压管网),管材采用镀锌钢管,螺纹连接;生活污水采用PVC-U排水塑料管,粘接;排水立管每层设立检口,出屋面设透气帽。
2、洁具及附件:连体式坐便器、自闭式立式小便器、拖布盆、铜质地漏,引入管上安装LXS型旋翼湿式冷水表;阀门及水表连接方式同管道。
3、给水管道在交付使用前必须进行水冲洗和消毒冲洗,要求以不小于1.5m/s的流速进行冲洗;排水立管及干管在交付使用前要求做通球试验,以管道通畅为合格。
4、管道穿外墙设刚性防水套管。
5、未说明之处不计算。
6、管道工程量见下表:


6、根据2012年定额,按图计算采暖工程的工程量,列出相应定额编号、工程项目、单位和计算式。(保留小数点后两位)定额编号标注方式为册+定额编号
设计说明:
1、该建筑为一综合服务楼,设有客房。本工程采用下供下回双管式热水采暖系统,供水、回水干管敷设在首层暖沟内。
2、采暖管道采用焊接钢管,管径在32mm以下采用螺纹连接,管径在32mm以上采用焊接。入口处设DN20循环管,循环管上设阀门;供回水干管末端均设泄水阀;立、支管上的阀门如图示,连接方式同管道。
3、客户卫生间采用240*100型闭式钢串片散热器,工作压为1.0Mpa。顶层散热器上设手动放风阀。
4、管道采用型钢支架,支架工程量按105kg计算。
5、管道穿首层及楼板应设填料套管。
6、所有管道、管件、支架表面除锈后,刷防锈漆两道,明装管道再刷银粉两道。
7、敷设在暖沟内的管道均需保温,采用橡塑管壳,厚度为20mm,外缠一道防火塑料布保护层。
8、未说明之处不计算。
管道工程量按下表计算:

首层采暖平面图

二∽三层采暖平面图

采暖系统图
7、根据2012年定额,按图计算给排水工程的工程量,列出相应定额编号、工程项目、单位和计算式,对于管道安装、刷油及保温只要求列出相应定额编号、工程项目和单位,不计算工程量。(保留小数点后两位)定额编号标注方式为册+定额编号
设计说明:
1、本工程为某住宅小区六层住宅楼,顶层复式,每个住户设有1~3个卫生间。
2、给排水管道由室外直埋敷设进入室内,给水、热水采用镀锌钢管,螺纹连接;排水采用PVC-U排水塑料管,粘接。
3、卫生洁具和给水配件采用节水型产品,坐便器采用直排式分体座而;洗脸盆采用混合水嘴台式洗脸盆,家具盆采用普通家用洗涤盆(冷热),淋浴器采用不锈钢成品淋浴器;浴盆采用混合水嘴带喷头亚克力浴缸;冷、热水表采用LXS型水表。
4、给水、热水系统阀门均选用铜闸阀,热水循环管点设置自动排气阀,连接方式均同管道。
5、给水、热水管道穿首层地面及楼板均采用填料套管。
6、明设镀锌钢管刷银粉一道,埋设的镀锌钢管刷沥青漆二道。
7、给水、热水横管均做防结露保温,做法采用10mm厚复合聚乙烯泡沫塑料保温。
8、给排水系统安装后,需进行一次水压试验及闭水试验。
9、给排水管道采用型钢支架,支架安装完毕要求刷防锈漆二道,调和漆二道。(支架工程量按150kg计算。)
10、未说明之处不计算。






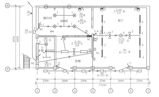
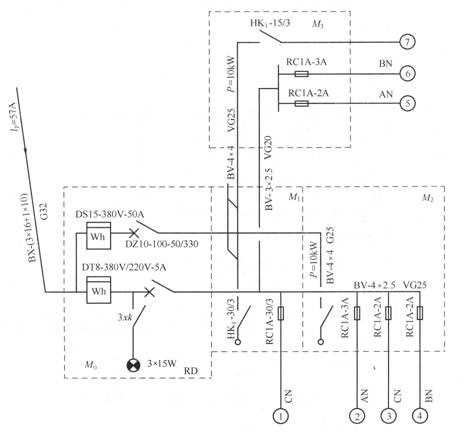
8、如图为某饭店电气照明工程施工图(平面图及系统图),由临街电杆架空引入380V电源,作电气照明用,进户线采用BX型,室内一律用BV型线穿PVC管暗敷。
4台配电箱(M0~M3)均为工厂成品,一律暗装,箱底距地1.5m。
插座暗装距地1.3m。
拉线开关安装距顶棚0.3m,跷板开关暗装距地1.4m。
配电箱做可靠接地保护。

图1 电气一层平面图
1、



2、某办公楼采暖工程,地点位于北京城区五环内,建筑物檐高20米。按照2012通用安装工程预算定额第十册《给排水 采暖 燃气工程》计算得出该工程分部分项工程费1100000元,其中人工费165000元;措施项目费读取内容见下表,其他项目费未计取。依据2012通用安装工程预算定额第十册《给排水 采暖 燃气工程》,京建法[2013]7号“关于执行《北京市建设工程计价依据-预算定额》的规定”文件,按下表内容编制该工程招标控制价。(要求填写计取基数,金额保留小数点后两位数字)
某办公楼采暖工程招标控制价
|
序号 |
项目 |
计取基数 |
费率(%) |
金额(元) |
|
1 |
分部分项工程费 |
|
|
|
|
1.1 |
其中:人工费 |
|
|
|
|
2 |
措施项目费 |
|
|
|
|
2.1 |
脚手架使用费 |
165000.00 |
5 |
|
|
|
其中:人工费 |
|
25 |
|
|
2.2 |
安全文明施工费 |
165000.00 |
21.84 |
|
|
3 |
其他项目费 |
|
|
0.00 |
|
4 |
规费 |
|
19.52 |
|
|
5 |
税金 |
|
3.48 |
|
|
6 |
合计 |
|
|
|
3、根据2012年《北京市通用安装工程预算定额》,按图纸计算通风工程的工程量,列出相应项目定额编号、工程项目、单位和计算式;定额中未计价材料和设备不列项。(保留小数点后两位数字)
工程量计算表说明:定额编号标注方式为“册+定额编号”。如第7册1-1子目 ,定额编号为7-1-1
设计说明:某铝箔印刷车间设计通风系统。
1、轴流风机采用墙内安装,混流风机采用金属支架上安装(风机支架不要求计算),风机技术参数见下表。
2、混流风机均设出墙弯管,规格为¢450,垂直长度为300mm,弯管末端加防虫网(镀锌钢管网,框内规格¢400 )。
3、风管采用热镀锌钢板制作,厚度0.75mm,咬口连接。风管长度按图示尺寸计算。
4、室内风口采用铝合金材质百叶风口(带过滤网),风口规格如图示,颜色根据装修需要确定,风口按成品考虑。风口至风管的短节不计算。
5、风管外做橡塑保温(包括出墙弯管),厚度30mm。
6、其他未说明处不计算。

4、 根据2012年《北京市通用安装工程预算定额》,按图纸计算采暖工程的工程量,列出相应项目的定额编号、项目名称、计量单位、计算式、工程量。列出未计价主材,并计算相应工程量。(保留小数点后两位数字)
如图为某综合厂房采暖工程,设计说明如下:
1、采用市政采暖接口,设计供回水温度85/60℃。除已标注单位外,尺寸标注为mm。水平干管不考虑放坡系数。
2、供回水管主、干管均采用焊接钢管,管径DN>25采用焊接,管径DN≤25采用螺纹连接,与散热器连接的支管、立管均采用镀锌钢管,螺纹连接,管径均为DN20。干管按系统图标注尺寸计算,支管按1.5米/组(每组散热器)计算。
3、散热器均采用钢制柱式SCCGZY-1.0型成品散热器(高度1米),散热器采用落地安装,连接方式为同侧上供下回。
4、螺纹阀门采用全铜阀门,焊接法兰阀采用铸钢法兰阀门;每组散热器均设手动跑风。
5、其它未说明处不计算。
工程量计算表说明:定额编号标注方式为“册+定额编号”。如第7册1-1子目 ,定额编号为7-1-1

5、根据2012年《北京市通用安装工程预算定额》,按图计算给排水工程的工程量,列出相应定额编号、工程项目、单位和计算式。(保留小数点后两位数字,不用考虑主材。)定额编号标注方式为册+定额编号
1、生活给水由市政管网直接供给(低压管网),管材采用镀锌钢管,螺纹连接;生活污水采用PVC-U排水塑料管,粘接;排水立管每层设立检口,出屋面设透气帽。
2、洁具及附件:连体式坐便器、自闭式立式小便器、拖布盆、铜质地漏,引入管上安装LXS型旋翼湿式冷水表;阀门及水表连接方式同管道。
3、给水管道在交付使用前必须进行水冲洗和消毒冲洗,要求以不小于1.5m/s的流速进行冲洗;排水立管及干管在交付使用前要求做通球试验,以管道通畅为合格。
4、管道穿外墙设刚性防水套管。
5、未说明之处不计算。
6、管道工程量见下表:
|
规 格 |
数量 |
规 格 |
数量 | |
|
镀锌钢管DN15 |
9.90 |
UPVC排水管DN50 |
|
5.40 |
|
镀锌钢管DN20 |
28.30 |
UPVC排水管DN75 |
干管 |
2.10 |
|
镀锌钢管DN25 |
1.40 |
立管 |
12.20 | |
|
镀锌钢管DN32 |
1.90 |
支管 |
16.80 | |
|
镀锌钢管DN40 |
10.50 |
UPVC排水管DN100 |
干管 |
2.10 |
|
|
|
立管 |
12.20 | |
|
|
|
支管 |
9.30 | |


6、根据2012年定额,按图计算采暖工程的工程量,列出相应定额编号、工程项目、单位和计算式。(保留小数点后两位)定额编号标注方式为册+定额编号
设计说明:
1、该建筑为一综合服务楼,设有客房。本工程采用下供下回双管式热水采暖系统,供水、回水干管敷设在首层暖沟内。
2、采暖管道采用焊接钢管,管径在32mm以下采用螺纹连接,管径在32mm以上采用焊接。入口处设DN20循环管,循环管上设阀门;供回水干管末端均设泄水阀;立、支管上的阀门如图示,连接方式同管道。
3、客户卫生间采用240*100型闭式钢串片散热器,工作压为1.0Mpa。顶层散热器上设手动放风阀。
4、管道采用型钢支架,支架工程量按105kg计算。
5、管道穿首层及楼板应设填料套管。
6、所有管道、管件、支架表面除锈后,刷防锈漆两道,明装管道再刷银粉两道。
7、敷设在暖沟内的管道均需保温,采用橡塑管壳,厚度为20mm,外缠一道防火塑料布保护层。
8、未说明之处不计算。
管道工程量按下表计算:
|
明装管道工程量 |
|
|
|
| |
|
规格 |
DN15 |
|
|
|
|
|
工程量(m) |
166 |
|
|
|
|
|
|
|
|
|
|
|
|
暖沟内管道工程量 |
|
|
|
| |
|
规格 |
DN15 |
DN20 |
DN25 |
DN32 |
DN40 |
|
工程量(m) |
54 |
17 |
14.5 |
14.5 |
6 |

首层采暖平面图

二∽三层采暖平面图

采暖系统图
7、根据2012年定额,按图计算给排水工程的工程量,列出相应定额编号、工程项目、单位和计算式,对于管道安装、刷油及保温只要求列出相应定额编号、工程项目和单位,不计算工程量。(保留小数点后两位)定额编号标注方式为册+定额编号
设计说明:
1、本工程为某住宅小区六层住宅楼,顶层复式,每个住户设有1~3个卫生间。
2、给排水管道由室外直埋敷设进入室内,给水、热水采用镀锌钢管,螺纹连接;排水采用PVC-U排水塑料管,粘接。
3、卫生洁具和给水配件采用节水型产品,坐便器采用直排式分体座而;洗脸盆采用混合水嘴台式洗脸盆,家具盆采用普通家用洗涤盆(冷热),淋浴器采用不锈钢成品淋浴器;浴盆采用混合水嘴带喷头亚克力浴缸;冷、热水表采用LXS型水表。
4、给水、热水系统阀门均选用铜闸阀,热水循环管点设置自动排气阀,连接方式均同管道。
5、给水、热水管道穿首层地面及楼板均采用填料套管。
6、明设镀锌钢管刷银粉一道,埋设的镀锌钢管刷沥青漆二道。
7、给水、热水横管均做防结露保温,做法采用10mm厚复合聚乙烯泡沫塑料保温。
8、给排水系统安装后,需进行一次水压试验及闭水试验。
9、给排水管道采用型钢支架,支架安装完毕要求刷防锈漆二道,调和漆二道。(支架工程量按150kg计算。)
10、未说明之处不计算。






8、如图为某饭店电气照明工程施工图(平面图及系统图),由临街电杆架空引入380V电源,作电气照明用,进户线采用BX型,室内一律用BV型线穿PVC管暗敷。
4台配电箱(M0~M3)均为工厂成品,一律暗装,箱底距地1.5m。
插座暗装距地1.3m。
拉线开关安装距顶棚0.3m,跷板开关暗装距地1.4m。
配电箱做可靠接地保护。

图1 电气一层平面图

图3 电气系统图
回路配线表
回 路 |
容量/W |
配 管 配 线 |
|
1 |
820 |
BV-2×2.5 PVC15 |
|
2 |
595 |
BV-2×2.5 PVC15 |
|
3 |
320 |
BV-2×2.5 PVC15 |
|
4 |
360 |
BV-2×2.5 PVC15 |
|
5 |
480 |
BV-2×2.5 PVC15 |
|
6 |
640 |
BV-2×2.5 PVC15 |
|
7 |
1000 |
BV-4×2.5 PVC20 |
工程量计算
根据施工图说明及平面图、系统图、回路配线表进行工程量的计算。
责编:lz




