2015年造价员考试土建工程每日一练(8月26日)
来源:233网校 2015年8月26日
导读:
在线测试本批《每日一练》试题,可查看答案及解析,并保留做题记录 >> 在线做题
简答题
1、建筑按面积计算
背景资料:某建筑一层平面图,屋顶平面图如下所示。
问题:计算该建筑的建筑面积为多少?

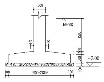
2、土方工程
背景资料:如下图所示,该独立基础共计10个,室外标高为-0.3,土壤类别为三类土,施工方案中工作面取0.3m,放坡系数为0.3。
问题:
1、根据2013清单计价规范计算挖土方的清单工程量
2、根据2013清单计价规范计算垫层工程量
3、根据2013清单计价规范计算独立基础工程量
4、根据2013清单计价规范计算基础回填工程量

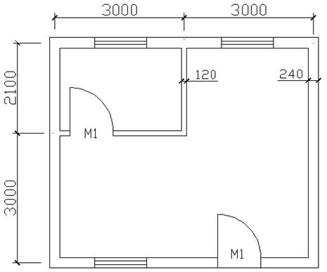
3、砌筑工程
背景资料:某建筑平面图如下图所示,外墙240厚,采用页岩多孔砖砌筑,内墙120厚采用标准砖砌筑,轴线居中布置,砌墙高度为3m。M1的洞口尺寸为1000*2000,窗户洞口尺寸均为1200*1500,外墙门窗洞口上方所有过梁体积为0.3m3,内墙门洞上方过梁体积为0.03m3
问题:
1、计算多空砖墙清单工程量
2、计算实心砖墙清单工程量

4、混凝土工程
背景资料:某筏板基础平面,剖面如下图所示,
问题:
1、计算筏板基础混凝土清单工程量
2、计算筏板基础模板清单工程量

5、钢筋工程量
背景资料:某基础平面,剖面如下图所示,该工程抗震等级为3级,混凝土强度等级为C25,钢筋保护层厚度40。
问题
1、根据11G101图集计算直径12的单根钢筋长度
2、根据11G101图集计算直径12的钢筋根数

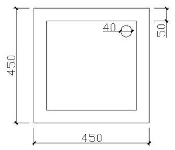
6、装饰工程
背景资料:某现浇混凝土拖把池,相应尺寸如下图所示,采用水泥砂浆贴面砖总厚度20
问题:根据13规范计算零星块料清单工程量为( )㎡。

7、某建筑基础采用钢筋混凝土基础,墙体采用砖墙,混凝土基础顶面标高为+0.15,室内标高为±0.00,室外标高为-0.2,该建筑基础和墙体的分界为( )m
8、某7层框架结构办公楼建筑面积为5000㎡,首层层高5m,其他层层高3.4m,板厚均为120,室外标高为-0.3,则该建筑的檐口高度为()m
9、某现浇混凝土独立柱,柱截面为800*800,柱高5m,根据四川2015定额完成下列问题
1、 该独立柱脚手架应执行( )项目
2、 脚手架项目工程量为( )㎡
10、计算投标报价时,某装饰工程关于其他项目,已知条件如下:
(1)清单上所列的暂列金额为18万元。
(2)分包的专业工程价款为30万元。
(3)甲供材料为花岗石,花岗石暂估单价为 200元/㎡,消耗量为1200㎡。
(4)总承包服务费按专业工程分包价格的3%,甲供材料的1%计取。
问题
1、【判断】投标报价时暂列金额直接填写18万。( )
2、专业工程暂估价为 ( )万
3、计算总承包服务费为( )万。
4、其他项目清单费用是( )万。
1、建筑按面积计算
背景资料:某建筑一层平面图,屋顶平面图如下所示。
问题:计算该建筑的建筑面积为多少?


2、土方工程
背景资料:如下图所示,该独立基础共计10个,室外标高为-0.3,土壤类别为三类土,施工方案中工作面取0.3m,放坡系数为0.3。
问题:
1、根据2013清单计价规范计算挖土方的清单工程量
2、根据2013清单计价规范计算垫层工程量
3、根据2013清单计价规范计算独立基础工程量
4、根据2013清单计价规范计算基础回填工程量


3、砌筑工程
背景资料:某建筑平面图如下图所示,外墙240厚,采用页岩多孔砖砌筑,内墙120厚采用标准砖砌筑,轴线居中布置,砌墙高度为3m。M1的洞口尺寸为1000*2000,窗户洞口尺寸均为1200*1500,外墙门窗洞口上方所有过梁体积为0.3m3,内墙门洞上方过梁体积为0.03m3
问题:
1、计算多空砖墙清单工程量
2、计算实心砖墙清单工程量

4、混凝土工程
背景资料:某筏板基础平面,剖面如下图所示,
问题:
1、计算筏板基础混凝土清单工程量
2、计算筏板基础模板清单工程量


5、钢筋工程量
背景资料:某基础平面,剖面如下图所示,该工程抗震等级为3级,混凝土强度等级为C25,钢筋保护层厚度40。
问题
1、根据11G101图集计算直径12的单根钢筋长度
2、根据11G101图集计算直径12的钢筋根数


6、装饰工程
背景资料:某现浇混凝土拖把池,相应尺寸如下图所示,采用水泥砂浆贴面砖总厚度20
问题:根据13规范计算零星块料清单工程量为( )㎡。


7、某建筑基础采用钢筋混凝土基础,墙体采用砖墙,混凝土基础顶面标高为+0.15,室内标高为±0.00,室外标高为-0.2,该建筑基础和墙体的分界为( )m
8、某7层框架结构办公楼建筑面积为5000㎡,首层层高5m,其他层层高3.4m,板厚均为120,室外标高为-0.3,则该建筑的檐口高度为()m
9、某现浇混凝土独立柱,柱截面为800*800,柱高5m,根据四川2015定额完成下列问题
1、 该独立柱脚手架应执行( )项目
2、 脚手架项目工程量为( )㎡
10、计算投标报价时,某装饰工程关于其他项目,已知条件如下:
(1)清单上所列的暂列金额为18万元。
(2)分包的专业工程价款为30万元。
(3)甲供材料为花岗石,花岗石暂估单价为 200元/㎡,消耗量为1200㎡。
(4)总承包服务费按专业工程分包价格的3%,甲供材料的1%计取。
问题
1、【判断】投标报价时暂列金额直接填写18万。( )
2、专业工程暂估价为 ( )万
3、计算总承包服务费为( )万。
4、其他项目清单费用是( )万。
责编:lz