河南造价员考试《建筑计价与基础案例分析》培训02
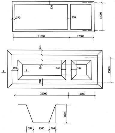
5.某工程挖地槽放坡如下图所示,三类土,计算其综合基价。
【解】工程量=(1.5+1.5+0.594×2)×1.8÷2×[(21十12+15)×2+(15-1.5)]m2=412.73m2
套定额子目1-341530.46/m2×412.73=6316.67(元)
6.如图所示,求人工挖沟槽支挡土板土方工程量(二类土)及其综合基价。
【解】(1)挖土方工程量:
(1.4+0.1×2+0.15×2)×1.5×(20+10)×2m3=1.9×1.5×60m3=171.00m3
定额子目1-29换(767.16×1.1)/100m2×171.00=1443.03(元)
(2)挡土板工程量:1.5×2×(20+10)×2m2=3×60m2=180m2
套定额子目1-621948.57/100m2×180=3507.43(元)
人工挖地槽定额,一般以土壤类别和挖土深度划分定额子目,工程内容包括挖土、装土、抛土于槽边1m以外,修理槽壁、槽底,在编制工程预算时,没有地质资料,又不易确
定土壤类别时暂按干土、坚土计算。在竣工结算时按实际土壤类别加以调整。
责编:lyz




