河北造价员考试工程计量与计价实务(开卷部分)模拟测试(1)
- 第3页:安装管道专业试题(开卷部分)9-11
- 第4页:市政道桥专业试题(开卷部分)12-15
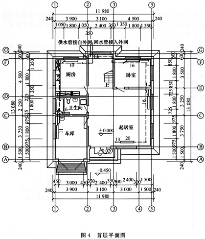
9、某市一小别墅采暖系统平面图和系统图如图1~图4所示,图中外墙厚370mm,内墙厚240mm,水平管、立管距墙100mm。


图2阁楼平面图


根据以上信息,回答9-11问题!
问题:
采用工料单价法计算该工程室内供水、回水干管管道及散热器安装项目的工程量。
10、
某市新建办公楼消防工程
已知:
1.工程概况:该办公楼为框剪结构,6层,层高2.8m,建筑面积5120m2。
2.该工程采用工程量清单方式招标,于2013年9月1日开工,工程地点在市区,施工现场已具备安装条件,材料运输方便,施工形式包工包料。
3.假设招标文件中给定的工程量清单见表1。
表1
|
序号 |
项目名称 |
单位 |
数量 |
|
|
室内消火栓系统 |
|
|
|
1 |
无缝钢管φ108×4.5焊接连接水冲洗 |
m |
860.O0 |
|
2 |
双栓消火栓SN65(铝合金箱) |
套 |
110.00 |
|
|
室内水喷淋系统 |
|
|
|
1 |
镀锌钢管DN100螺纹连接管网水冲洗 |
m |
540.00 |
|
2 |
闭式喷头DN15吊顶下安装 |
个 |
415.00 |
|
3 |
点式感烟探测器(总线制) |
只 |
40 |
4.招标文件中确定的材料暂估价:无缝钢管(各种规格)5000元/t,镀锌钢管(各种规格)3600元/t。
5.2013年9月省造价管理总站发布的材料信息价:无缝钢管4,108×4.5,5100元/t镀锌钢管DN100,3800元/t。
6.可竞争措施项目仅计取“脚手架搭拆费”、“冬雨季施工增加费”。
问题:
按照上述条件,试计算该工程限价并填入相应表格内。(φ108×4.5无缝钢管:11.49kg/m,DN100镀锌钢管:10.85kg/m,其余未计价材料不计价)。试计算消火栓系统。
11、
某县房地产项目住宅楼给、排水工程
已知:
1.工程概况:该住宅楼在县区繁华地段,框架结构,共9层,层高2.8m,施工现场已具备安装条件,材料运输方便。
2.合同约定2013年7月8日开工,采用工料单价法计价,包工包料。
3.假设该工程部分室内给、排水工程量汇总见表2:
表2
|
序号 |
项目名称 |
单位 |
数量 |
|
|
给水系统 |
|
|
|
1 |
无规共聚聚丙烯给水管DN50(热熔连接) |
m |
30.00 |
|
2 |
无规共聚聚丙烯给水管DN32(热熔连接) |
m |
65.00 |
|
3 |
无规共聚聚丙烯给水管DN20(热熔连接) |
m |
160.00 |
|
4 |
螺纹截止阀J11T—16DN50 |
个 |
2.00 |
|
5 |
螺纹截止阀J11T一16DN20(与水表配套使用) |
个 |
14.00 |
|
6 |
螺纹水表1XS20DN20 |
个 |
14.00 |
|
|
排水系统 |
|
|
|
7 |
UPVC承插塑料排水管De110(粘接) |
m |
180.00 |
|
8 |
UPVC承插塑料排水管De75(粘接) |
m |
70.00 |
|
9 |
UPVC承插塑料排水管De50(粘接) |
m |
50.00 |
|
10 |
塑料地漏DN50 |
个 |
28.00 |
|
11 |
地面扫除口DN50 |
个 |
14.00 |
4.双方约定部分未计价材料价格如下:
螺纹水表1XS-20DN20,48元/个;螺纹截止阀J11T-16DN50,50元/个;
螺纹截止阀J11T-16DN20,20元/个;地面扫除口DN50,12元/个;
其余未计价材料不计价。
5.可竞争措施费仅计取脚手架搭拆费、冬雨季施工增加费。
问题:
按照上述条件,采用工料单价法计算该工程造价并填入相应表格内。计算排水系统(不考虑各政策性调整文件)。
1.本设计为热水采暖系统。热源来自锅炉房,热负荷为44kW。
2.散热器为铸铁四柱813散热器,每组散热器均装手动跑风阀一个,散热器除锈后,刷丹两道,银粉两道。
3.管材为水煤气输送钢管,管径32以上为焊接,32以下螺纹连接,明装管道除锈后,樟丹两道,银粉两道。
4.图中单位标高以米计,平面尺寸及管径以毫米计,管道标高均指管中,明装管道除锈后刷樟丹两道,银粉两道,管道穿墙壁楼板均应设钢套管。
5.设计图中未注明管径均为DN20。




