河北造价员考试工程计量与计价实务(开卷部分)模拟测试(1)
导读:
进入全真模拟考场在线测试此套试卷,可查看答案及解析并自动评分 >> 在线做题
本文导航
- 第1页:土建专业试题(开卷部分)1-5
- 第2页:安装电气专业试题(开卷部分)6-8
考试分土建(含装饰装修)、安装电气、安装管道、市政道桥、市政管道工程五个专业,每个专业分一、二、三级。请按报考专业答题。
1、


附图说明:
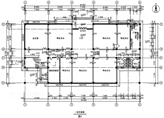
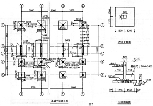
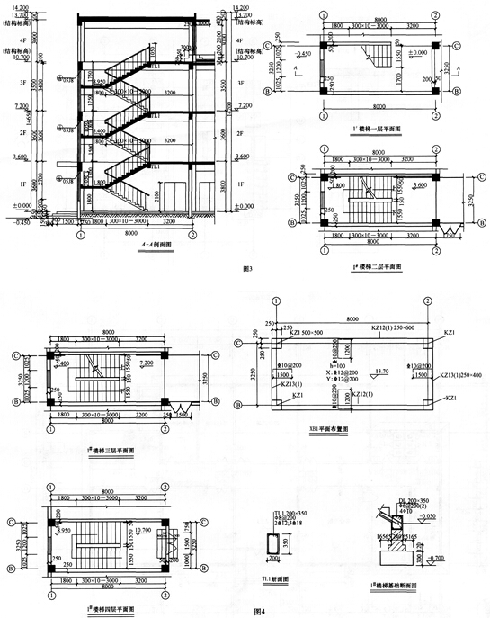
图1~图4为石家庄市区某办公楼(非房地产工程),开工时间2014年3月,框架结构,三层,局部四层(1#楼梯间四层)。混凝土为泵送商品混凝土,内外墙体均为加气混凝土砌块墙,外墙厚250mm,内墙厚200mm,M10混合砂浆砌筑。
根据图片回答1-5题目!
采用工料单价法计算附图中1#钢筋混凝土楼梯的工程量。
2、根据附图及已知条件采用工料单价法完成以下计算。
已知条件:
1.现浇板(XB1)混凝土为C25;
2.板保护层厚度为15mm;
3.通长钢筋搭接长度为25d;
4.下部钢筋锚固长度为150mm;
5.不考虑钢筋理论重量与实际重量的偏差。
计算:
1.XB1钢筋工程量。
2.XB1混凝土工程量。
3.XB1模板工程量。
3、根据附图及已知条件采用工料单价法完成以下计算。
已知条件:
1.该工程DJ01独立基础土石方采用人工开挖,三类土;设计室外地坪为自然地平;挖出的土方用自卸汽车(载重8t)运至500m处存放,灰土在土方堆放处拌和;基础施工完成后,用2:8灰土回填;
2.合同中没有人工工资调整的约定;也不考虑综合用工和材料的调整;
3.造价计算不考虑(机械台班等相关内容)。
计算:
1.DJ01独立基础的挖土方、回填2:8灰土、运输工程量。
2.DJ01独立基础挖土方及其运输的工程造价(措施项目中只计算安全生产、文明施工费)。
3.DJ01独立基础挖土方、回填2:8灰土、运输的工程造价(不计算措施费)。
4、根据第三题条件编制DJ01独立基础的挖土方、回填2:8灰土的工程量清单。(一、二级考生全答)
5、根据第三、四题已知条件和计算结果及以下已知条件,计算回填灰土的综合单价并完成表8至表14需要填写的内容,计算出合计金额。
已知条件:
1.基础回填灰土所需生石灰全部由招标人供应,按120元/t计算,共提供5.92t,并由招标人运至距回填中心500m处;
2.模板工程另行发包,估算价20000元;
3.暂列金额10000元;
4.招标人供应材料按0.5%计取总承包服务费,另行发包项目按2%计取总承包服务费;
5.厨房设备由承包人购买,按3万元计算。
1、



附图说明:
图1~图4为石家庄市区某办公楼(非房地产工程),开工时间2014年3月,框架结构,三层,局部四层(1#楼梯间四层)。混凝土为泵送商品混凝土,内外墙体均为加气混凝土砌块墙,外墙厚250mm,内墙厚200mm,M10混合砂浆砌筑。
根据图片回答1-5题目!
采用工料单价法计算附图中1#钢筋混凝土楼梯的工程量。
2、根据附图及已知条件采用工料单价法完成以下计算。
已知条件:
1.现浇板(XB1)混凝土为C25;
2.板保护层厚度为15mm;
3.通长钢筋搭接长度为25d;
4.下部钢筋锚固长度为150mm;
5.不考虑钢筋理论重量与实际重量的偏差。
计算:
1.XB1钢筋工程量。
2.XB1混凝土工程量。
3.XB1模板工程量。
3、根据附图及已知条件采用工料单价法完成以下计算。
已知条件:
1.该工程DJ01独立基础土石方采用人工开挖,三类土;设计室外地坪为自然地平;挖出的土方用自卸汽车(载重8t)运至500m处存放,灰土在土方堆放处拌和;基础施工完成后,用2:8灰土回填;
2.合同中没有人工工资调整的约定;也不考虑综合用工和材料的调整;
3.造价计算不考虑(机械台班等相关内容)。
计算:
1.DJ01独立基础的挖土方、回填2:8灰土、运输工程量。
2.DJ01独立基础挖土方及其运输的工程造价(措施项目中只计算安全生产、文明施工费)。
3.DJ01独立基础挖土方、回填2:8灰土、运输的工程造价(不计算措施费)。
4、根据第三题条件编制DJ01独立基础的挖土方、回填2:8灰土的工程量清单。(一、二级考生全答)
5、根据第三、四题已知条件和计算结果及以下已知条件,计算回填灰土的综合单价并完成表8至表14需要填写的内容,计算出合计金额。
已知条件:
1.基础回填灰土所需生石灰全部由招标人供应,按120元/t计算,共提供5.92t,并由招标人运至距回填中心500m处;
2.模板工程另行发包,估算价20000元;
3.暂列金额10000元;
4.招标人供应材料按0.5%计取总承包服务费,另行发包项目按2%计取总承包服务费;
5.厨房设备由承包人购买,按3万元计算。
责编:zdh




