2.赢得值法的评价指标考点解析
2.赢得值法的评价指标介绍
2.赢得值法的评价指标
1)费用偏差(CV)=已完工作预算费用(BCWP)-已完工作实际费用(ACWP)
计算结果大于零,表示实际费用节余,反之则为超支。
2)进度偏差(SV)=已完工作预算费用(BCWP)-计划工作预算费用(BCWS)
计算结果大于零,表示实际进度提前,反之则为落后。
3)费用绩效指数(CPI)=已完工作预算费用(BCWP)/已完工作实际费用(ACWP)
计算结果大于1,表示实际费用节余,反之则为超支。
4)进度绩效指数(SPI)=已完工作预算费用(BCWP)/计划工作预算费用(BCWS)
计算结果大于1,表示实际进度提前,反之则为落后。
539.65KB
下载
534.63KB
下载
820.62KB
下载
875.32KB
下载
755.06KB
下载
716.34KB
下载
658.50KB
下载
816.93KB
下载
433.43KB
下载
375.72KB
下载
501.08KB
下载
正确答案:
答察解析: 【第1问】
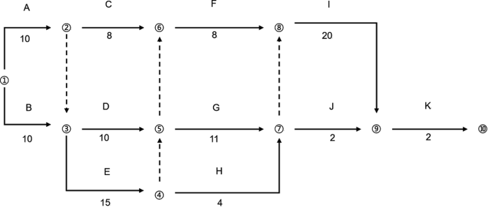
根据逻辑关系,画出双代号网络图

正确答案:
答察解析: 【第1问】
(1)事件1中预算单价120元/m,B公司已完成电缆排管施工1000m,可得:
已完工程预算费用BCWP=1000m×120元/m=120000元;
已完工程实际费用ACWP=160000元;
计划工程预算费用BCWS=(2000/20×12)m×120元/m=144000元;
所以:事件1中的CPI=BCWP/ACWP=120000/160000=0.75,说明费用超支。
事件1中的SPI=BCWP/BCWS=120000/144000=0.83,说明进度延误。
影响总工期,理由:工作电缆排管施工在关键线路上,是关键工作,时差为0,延误影响总工期。
【第2问】


正确答案:
答察解析: 【第1问】
1-1.错误一:限位杆定位螺母未松开;
改正:限位杆需要松开限位螺栓,将限位螺栓定位螺母调到合适位置预留工作空隙。
1-2.错误二:上游螺栓方向错误;
改正:橡胶软接头螺栓安装方向应螺母朝向外侧,避免螺栓顶到橡胶球体。
【第2问】
2-1.不合理。
2-2.集热器与集热器之间的连接宜采用柔性连接,不得采用型钢,且密封可靠、无泄漏、无扭曲变形。
【第3问】
BCWP(已完工程预算费用)=1000x90=9万
ACWP(已完工程实际费用)=12万
BCWS(计划工程预算费用)=[(2000/20)x12]x90=10.8万
费用偏差=9-12=-3万(1分)
进度偏差=9-10.8=-1.8万(1分)
费用绩效指数=9/12=0.75(1分)
【第4问】
4-1.项目部编制的工法还应增加适用范围、效益分析和应用实例。
4-2.科技查新报告由省级以上技术情报部门提供。
1.赢得值法的基本参数
赢得值法用三个基本值来表示项目的实施状态,并以此预测工程可能的完工时间和完工时的可能费用,三个基本值是:
1)已完工程预算费用(BCWP)=已完工程量x预算单价
2)计划工程预算费用(BCWS)=计划工程量x预算单价
3)已完工程实际费用(ACWP)=已完工程量x实际单价
2.赢得值法的评价指标
1)费用偏差(CV)=已完工作预算费用(BCWP)-已完工作实际费用(ACWP)
计算结果大于零,表示实际费用节余,反之则为超支。
2)进度偏差(SV)=已完工作预算费用(BCWP)-计划工作预算费用(BCWS)
计算结果大于零,表示实际进度提前,反之则为落后。
3)费用绩效指数(CPI)=已完工作预算费用(BCWP)/已完工作实际费用(ACWP)
计算结果大于1,表示实际费用节余,反之则为超支。
4)进度绩效指数(SPI)=已完工作预算费用(BCWP)/计划工作预算费用(BCWS)
计算结果大于1,表示实际进度提前,反之则为落后。
1.偏差分析
曲线法在项目实施过程中,计划工程预算费用BCWS、已完工程预算费用BCWP、已完工程实际费用ACWP的三个参数可以形成三条曲线。
CV=BCWP-ACWP,两项参数之差,反映项目进展的费用偏差。
SV=BCWP-BCWS,两项参数之差,反映项目进展的进度偏差。
2.项目费用-进度综合控制方法
3.项目费用-进度综合控制分析
(1)在机电工程项目费用-进度综合控制中,最理想的状态是已完工程实际费用曲线、已完工程预算费用曲线和计划工程预算费用曲线非常靠近,平稳上升,表示工程项目按计划目标进行,如果三条曲线的离散度不断增加,表示出现较大的费用偏差,项目费用一进度失控。
1.赢得值法的基本参数
赢得值法用三个基本值来表示项目的实施状态,并以此预测工程可能的完工时间和完工时的可能费用,三个基本值是:
1)已完工程预算费用(BCWP)=已完工程量x预算单价
2)计划工程预算费用(BCWS)=计划工程量x预算单价
3)已完工程实际费用(ACWP)=已完工程量x实际单价
1.偏差分析
曲线法在项目实施过程中,计划工程预算费用BCWS、已完工程预算费用BCWP、已完工程实际费用ACWP的三个参数可以形成三条曲线。
CV=BCWP-ACWP,两项参数之差,反映项目进展的费用偏差。
SV=BCWP-BCWS,两项参数之差,反映项目进展的进度偏差。
3.项目费用-进度综合控制分析
(1)在机电工程项目费用-进度综合控制中,最理想的状态是已完工程实际费用曲线、已完工程预算费用曲线和计划工程预算费用曲线非常靠近,平稳上升,表示工程项目按计划目标进行,如果三条曲线的离散度不断增加,表示出现较大的费用偏差,项目费用一进度失控。
拒绝盲目备考,加学习群领资料共同进步!

免费听
赵春晓
幽默风趣,思维导图总结精彩,考点层次分明。
主讲:安全生产管理,建设工程施工管理,建设工程项目管理
233网校一级建造师《项目管理》、二级建造师《施工管理》独家签约网课老师。某“双一流、211”高校副研究员、硕导,国家一级注册建造师、造价师。

免费听
王东兴
灵魂导师
主讲:建设工程法规及相关知识,建设工程法规及相关知识,安全生产法律法规
管理学硕士,国家注册一级建造师,多年从事教育行业,主攻工程经济、项目管理、企业管理方向。

免费听
董航
主讲:建设工程经济
曾任中建一局集团项目执行经理,多年现场经验,对施工现场生产管理、现场安全、施工技术非常熟悉,在一级建造师、注册安全工程师执业资格考试方面,有丰富的教学经验,更有其独特的培训风格,其地毯式培训教学,准确打击知识点,每年都会帮助广大学员顺利取证。

免费听
江凌俊
口诀一绝
主讲:目标控制(土木建筑),进度控制(水利),建筑施工安全,建筑工程管理与实务,建筑工程,建筑施工安全
曾在设计院任职,线上线下多年培训行业从业经历。

免费听
胡宗强
主讲:市政公用工程
从事建造师培训多年。经验丰富,命题方向把握准确。

免费听
梁毛
主讲:案例分析(土木建筑),建筑工程
工程管理证书“大满贯”获得者,一级建造师(建筑/机电)、造价工程师、监理工程师(土建/交通)、二级建造师(建筑/机电/市政)、高级工程师(建筑工程)
专业智能,高效提分
章节练习
章节专项突破
进入做题
精选试题
省时高效精选
进入做题
模拟考场
海量题免费做
进入做题
考前点题
高效锁分72小时
进入做题
每日一练
每天进步一点点
进入做题
历年真题
真题实战演练
进入做题
易错题
精选高频易错题
进入做题
模考大赛
同场闯关做题
进入做题
APP刷题神器
模考大赛
考点打卡
做题闯关

扫描二维码 下载233网校APP刷题
微信扫码关注公众号
获取更多考试资料